
Modernus Fachverko namo projektas MEDIAN 1
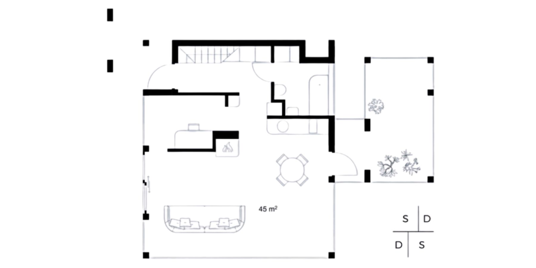
„MEDIAN 1“ – unikalus ir kompaktiškas 45 m² gyvenamasis namas, sukurtas pagal modernaus Fachverko architektūros principus. Tai minimalistinis, šiuolaikiškas sprendimas, išsiskiriantis savo lengvu, elegantišku dizainu.

Projektas parengtas kartu su Sigito Danieliaus dizaino studija. Dideli panoraminiai langai užtikrina šviesą ir ryšį su aplinka, o glulam konstrukcija tvirta ir ilgaamžė. „MEDIAN 1“ sukurtas taip, kad derėtų prie gamtos, būtų estetiškas ir funkcionalus, bet kartu išliktų kompaktiškas ir patogus.
„MEDIAN 1“ simbolizuoja naują požiūrį į gyvenimą, kuriame svarbiausia – paprastumas, šviesa ir harmonija su aplinka.

Vieta:
Airija
Plotas:
45 m²
Paskirtis:
Gyvenamasis namas
Paslauga:
Statyba iki 85%
pažinkite




